PTOEdge | Salesproposal | Plan set | Pto | Permitting

Get PTOEdge’s Fastest
Solar Planset to PTO & Permitting solution in USA

PtoEdge offers reliable solar design services for solar installers, and Homeowners across the U.S. We handle residential and commercial designs, manage permits, and streamline approvals to help projects move faster.

What We Do

Our Solar Services

solar sales service service
FILE DELIVERED​
3250 +
SLA MET
0 %

SALES PROPOSAL

At PTOEdge, Sales proposal solutions help EPCs and installers close deals faster and smarter. Therefore, the team designs visually compelling, data-backed proposals that clearly communicate system value. 

solar plan set service
FILE DELIVERED​
3250 +
AHJ APPROVEL
0 %

PLAN SET

PTOEdge delivers accurate and approval-ready Plan set documentation for residential and commercial projects. Because clarity drives faster approvals, every layout and diagram meets NEC and AHJ standards. 

solar pe stamp service
FILE DELIVERED​
4380 +
APPRVAL RATING
0 %

PE STAMP

With PE stamp services, PTOEdge ensures structural integrity and compliance from day one. Since engineering precision matters, licensed professionals carefully review calculations and mounting systems. 

solar permitting service
FILE DELIVERED
8400 +
APPROVAL RATING
59 %

PERMITTING

PTOEdge simplifies permitting, so projects move forward without unnecessary delays. Since the requirements of AHJ differ, the team is capable to provide perfect, code, compliant documentation right from the start. Additionally.

solar permission to operate ( PTO ) services
FILE DELIVERED
7860 +
APPROVEL RATING
78 %

PERMISSION TO OPERATE

Permission to operate becomes seamless when PTOEdge manages the process. Because utilities require thorough paperwork, PTOEdge guarantees that a complete, error, free submission is made

solar app plus services
FILE DELIVERED
123 +
APPROVAL RATING
78 %

SOLAR APP+

PTOEdge strengthens operational efficiency through its Solar app. Since solar companies undergo various workflows, this software integrates design, permitting, and communication all in one system. 

Book Your Demo

Nationwide coverage for solar companies and homeowners. Get started in minutes.

Fast, Expert Support With Plan-set, PE Stamp, PTO & Permitting

To further assist you, we design every commercia & residential l project to match your specific utility interconnection needs and make the PTO process easy and fast.

End-to-end solar design and compliance expertise

Permit-ready and utility-compliant documentation

Faster approvals and minimized revision cycles

Dedicated support from design to PTO

Integrated Solar app for workflow efficiency

Licensed engineering validation and PE stamping

30 Minute Meeting

⏱️ 30 min 📹 Web conferencing details provided upon confirmation
Sun
Mon
Tue
Wed
Thu
Fri
Sat

About PTOEdge

PTOEdge provides top solar system design services for EPCs,solar installers, and solar developers across the USA. In addition, we design solar systems for the commercial sector, prepare permits, and implement data-driven approval workflows that reduce the time of waiting.

Presently, our core competence lies in optimizing the PTO (Permission to Operate) and residential solar permitting support. Moreover, we build each project with precise, engineering-based methods to secure faster approval from AHJs and utility companies. As a result, you receive clear permit-ready solar plans, simple and optimized layouts, quick approvals, and faster PTO.

PTOEdge, from the design submission process to obtaining the utility’s Permission to Operate, documents everything for ease of approval

Our core expertise focuses on optimizing the Permission to Operate (PTO) process
and supporting residential solar permitting. Every project is developed using
precise engineering methods to achieve faster approvals from Authorities Having
Jurisdiction (AHJs) and utility companies.

From the initial design submission to obtaining the final utility Permission to
Operate, PTOEdge prepares clear documentation and permit-ready solar plans that
simplify approvals and accelerate project timelines.

49+

National wise service's

99%

End-to-End Solar Approvals

Advanced Solar Design & Automated Permitting Systems

Scalable Commercial & Residential Solar Design

Since commercial & residential projects receive a lot of attention, we use expert commercial & residential solar specialists to create simple and effective design systems for warehouses, schools, retail plazas, factories, and PV farms. Furthermore, we check the load needs, building structure, roof shading, and utility mix. In addition, we use smart PV design software to increase solar output and improve Return on Investment (ROI).s.

SolarAPP+ — Done Righ

Our team understands the SolarAPP+ platform in depth. From preparing the application to resolving system errors, we ensure your submissions are handled correctly from the start. This enables installers in eligible jurisdictions to achieve same-day permit approvals without unnecessary delays or confusion.

Symbium — Precision & Efficiency

  • Expert handling of Symbium automated plan review tools

  • Code-ready submissions tailored to local requirements

  • Reduced revisions and faster permit approvals

  • Ideal for installers scaling projects efficiently

Why Choose PTOEdge

PTOEdge for End-to-End Solar Approvals

Preparation of documentation (PTO submission ready)

Each location is different. Therefore, we do not use templates. Instead, we create solar design and permitting plans for each location. These plans follow the AHJ and utility rules in your state. As a result, approvals are faster and the PTO process works much better

Reduced project costs through efficient processes

Faster approvals with AHJ-ready documentation

Transparent tracking at every project stage

Nationwide experience across utilities and jurisdictions

Reliable support with dedicated project coordination

Scalable capacity to handle single projects or bulk volumes

Dedicated Specialists
0 +
Projects Delivered
0 K+
States Covered
0 +
Client Satisfaction
0 %
Platform Features

PTOEdge Platform

All in one platform built for speedaccuracy, and nationwide coverage.

Features

Dashboard

Profile

Planset

PE Stamping

Permitting

PTO

Team

Chat

Orders

PROCESS OVERVIEW

Solar Utility Process

Follow the steps to successfully complete your permission to operate (PTO) and get your system activate.

Application Submit
Utility Review
Conditional Approval
Installation Complete
Inspection Scheduled
Inspection Approved
Final Docs Submitted
Final Review
PTO Issued
System Activation
Get Started

Let's Get Your Project Moving

we make your solar project simple.

Services
AHJ'S COVERED
1400 +
UTILITY COVERED
0 +
STATE'S COVERED
0 +
GW ENERGY ↑
0 +

Streamlined Permitting and PTO-Focused Solar Design Approach

The PTO process and permitting phases often take the most time in solar project development. PtoEdge focuses on creating permit-ready designs that simplify compliance and speed up the Permission to Operate process.

Our automated permit systems improve communication between contractors, AHJs, and utility companies. This reduces mistakes, revisions, and delays during the PTO process while enabling faster project approvals.

Streamlined Permitting and PTO-Focused Solar Design Approach

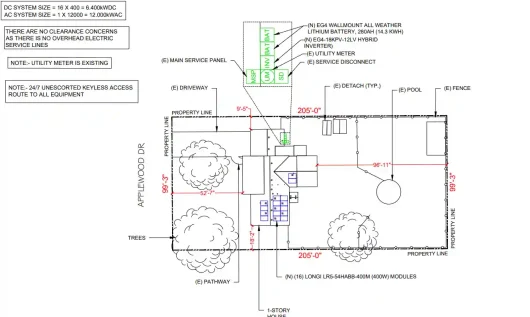
  • Electrical single-line diagrams
  • Three-line diagrams for commercial systems
  • Detailed site and roof plans
  • Mounting structure details
  • Placards and labels layout
  • Battery and non-battery configuration notes
  • Utility interconnection documentation
  • Net metering documentation support
  • PTO-ready submission formatting

Design for Grid-Tied and Battery Systems

For solar systems without batteries, we design optimized grid-tied configurations that support net metering and efficient PTO approvals.

For battery-based systems, we incorporate hybrid inverter configurations, backup load documentation, and utility-compliant design requirements.

Precision in Residential Solar Design Services

In addition to commercial systems, PtoEdge provides residential solar design services built for fast permitting and PTO approvals across the United States.

  • Clean and compliant permit documentation
  • Utility-specific PTO documentation
  • Shading analysis reports
  • Energy production estimates
  • High-efficiency solar panel layouts
  • Optimized panel placement for sunlight
  • String layout for inverter efficiency
  • Conduit routing for clean installation
  • Rapid shutdown compliance
  • Service panel load calculations
  • Utility-ready PTO submission packages

Forecasting Utility PTO and Permit Approvals

PtoEdge tracks AHJ review cycles, utility PTO timelines, and correction patterns to forecast permit approvals accurately. This proactive approach helps installers avoid unnecessary delays and predict approval timelines with greater confidence.

Permitting Workflow with Integrated Solar CRM

  • Automated customer documentation
  • Centralized client tracking
  • Milestone notifications
  • Automated workflow from proposal to PTO
  • Inspection and utility coordination tracking

Why PtoEdge Is Different

  • Design expertise for commercial and residential systems
  • Nationwide solar design and permitting services
  • Interconnection and PTO assistance
  • Database-driven forecasting models
  • Design support for battery and non-battery systems
  • Documentation optimized to reduce AHJ and utility rejections
  • Lifecycle energy cost optimization

Every project is designed to support successful installation, regulatory approval, and long-term operational performance.

What Solar Installers Say About Us

Eco Solar USA partners with PTOEdge to accelerate Permission to Operate timelines and deliver faster system activation for our customers.

ECO SOLAR

Bright Saver partners with PTOEdge to streamline plan sets, permitting, PE stamps, and Permission to Operate, ensuring faster project completion.

BRIGHT SAVER

PTOEdge supports Truzon Solar by managing critical approval processes that help reduce delays and improve customer timelines.

TRUZON SOLAR

Superior Solar sincerely thanks PTOEdge for their continued support and expertise, helping keep our projects on track and approvals moving smoothly.

SUPERIOR SOLAR
Recent Articles

Our Latest Blog

Solar Panel Technology in 2026 A Guide to Commercial Solar Engineering

Solar Panel Technology in 2026 A Guide to Commercial Solar Engineering

What Is New Solar Panel Technology in 2026? A Guide to Commercial Solar Engineering And the solar sector is shifting…

How to Scale Solar Operations in the USA Successfully

How to Scale Solar Operations in the USA Successfully

The solar power sector continues to grow and expand in the United States, with the demand for renewable energy on…

Battery Storage Permit Requirements in New York –  Guide for Solar Installers

Battery Storage Permit Requirements in New York – Guide for Solar Installers

As a solar installer, you are aware that requirements for permits for battery storage systems in New York are some…

Understanding Solar PTO Timelines for Residential & Commercial Projects

Understanding Solar PTO Timelines for Residential & Commercial Projects

For solar installers and EPCs doing business in multiple states, permitting is no surprise. For solar installers and EPCs doing…