PTOEdge | Salesproposal | Plan set | Pto | Permitting

PLAN SET

Solar Plan Sets Services by PtoEdge – Permit-Ready PV Design

When you need accurate solar plan sets, you need more than drawings. You need clarity, speed, and approval confidence. At PtoEdge , our team delivers code-compliant, utility-ready documentation for residential and small commercial projects across the United States.

We align every every detail with AHJ requirements, NEC standards, and utility guidelines. As a result, your project moves forward without delays.

Our experts combine advanced pv design services with real permitting insight. Therefore, you receive complete solar permit plans that installers and inspectors trust. From layout to load calculations, we handle it all under one roof.

What’s Included in Our solar plan sets

Key features

Permit-ready drawings aligned with AHJ requirements

Code-compliant layouts following NEC standards

Roof plans with obstruction and equipment placement details

Electrical single-line and three-line diagrams

Structural and mounting details as required

Clear labeling to support smooth utility and AHJ reviews

Why Solar Plan Sets Matter for Fast Approvals

Permitting delays cost time and money. However, strong documentation prevents rejections before they happen. Our solar plan sets simplify the approval process because we design them around real jurisdiction feedback.

Before finalizing each file, our engineers review local setbacks, fire access pathways, structural criteria, and utility interconnection requirements. This ensures the documentation aligns with AHJ expectations and speeds up permit approvals.

  • Residential & Commercial solar permit plan sets
  • Main panel upgrades
  • AHJ-compliant documentation
  • Utility-ready interconnection drawings
  • Code-compliant system layouts
  • Battery storage integration
  • Ground-mounted systems

Because we focus on solar design and permitting together, you avoid misalignment between engineering and paperwork. Consequently, inspectors approve faster and utilities respond sooner.

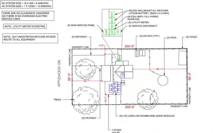
site plan - ptoedge
sinage - ptoedge

Built for Installers, EPCs, and Developers

 PTOEdge designs for professionals who value precision. Therefore, our residential pv design services help installers close projects confidently. At the same time, EPC firms benefit from scalable solar plan design support during high-volume periods.

We understand that every jurisdiction differs. So, we adapt each solar planset to local amendments, utility interconnection rules, and state codes.

Furthermore, our team checks voltage drop, conductor sizing, and breaker compatibility before final delivery. This proactive approach reduces costly field changes.

Seamless Solar Design and Permitting Support

 We do more than drafting. Instead, we support the entire solar design and permitting workflow. From initial concept to final approval, we remain available for revisions, clarification letters, and AHJ responses.

We are holding tight to our competitive turnaround times without compromising the quality. At the same time, our communication is kept clear and straightforward. Because of this balance, partners rely on us for repeat projects.

If you manage multiple installations each month, consistency matters. Therefore, our structured review process ensures every solar plan design meets the same high standard.

Advanced Tools. Real-World Expertise.

Technology drives efficiency. However, experience ensures accuracy. Our engineers use industry-leading software for pv design services while applying real permitting knowledge gained across 49+ U.S. states.

Because codes evolve, we stay current with NEC updates and 2025 compliance standards. As a result, your solar permit plans meet modern safety and grid requirements. Only minimal passive adjustments are required during reviews, since most issues are prevented early.

In addition, we coordinate with sales teams when needed. That way, proposed layouts align with structural feasibility and utility constraints from the start.

Start Your Project with Confidence

Accurate solar plan sets lead to faster approvals, smoother installations, and easier inspections. At PtoEdge, we combine engineering precision with permitting expertise so your solar projects move forward without unnecessary delays.

Whether you need residential PV design services or complete solar permit plans, our team is ready to support your next project across the U.S.

 

Permitting delays cost time and money. However, strong documentation prevents
rejections before they happen. Our solar plan sets simplify the approval
process because we design them around real jurisdiction feedback.

Before finalizing each file, our engineers review local setbacks, fire access
pathways, structural criteria, and utility interconnection requirements.
This ensures the documentation aligns with AHJ expectations and speeds
up permit approvals.

Solar Plan Sets Services by PtoEdge – Permit-Ready PV Design

Yes. Each running of plans is done at the ready with the rules of the AHJ, the standards of the NEC, and the guidelines of the utility, so that rejections can be minimized and approvals can be obtained faster.

Definitely, a solar permit plan is individually adjusted to the local setbacks, fire codes, and the interconnection requirements.

A solar power proposal needs to cover the system design, energy production estimates pricing installation timeline, and financial savings.

Yes. We calculate breaker sizing, backfeed limits, and system compatibility for safe battery integration.

Yes. We design residential, small commercial, and ground-mounted PV systems with code-compliant documentation.

We check voltage drop, conductor sizing, labeling, and local amendments prior to the submission.

Yes. All solar plan sets follow the latest NEC requirements and safety standards.

We respond quickly with updated drawings and clarification notes to protect your timeline.

Yes. We support clarification letters and AHJ responses when needed.

 Installers, EPCs, and developers who require accurate, scalable, permit, ready solar plan sets.

Get your planset now

We deliver accurate, code-compliant solar drawings
built to pass review and keep your project moving.

💬 Chat with us